CRHC Expansion Project
Clarinda Regional Health Center is growing and expanding. These projects are set to begin in the April 5th, 2021. Updates on all these future projects will be shared here.
Construction Updates
10.29.2021 | 10.15.2021 | 9.21.2021 | 8.20.2021 | 8.6.2021 | 7.23.2021 | 7.09.2021 | 6.11.2021 | 5.28.2021 | 5.14.2021 | 4.30.2021 | 4.16.2021 | 11.12.2021 | 11.24.2021| 01.07.2022 | 1.14.2022 | 1.21.2022 | 1.28.2022 | 2.04.2022 | 2.14.2022 | 2.25.2022 | 3.04.2022 | 3.18.2022 | 3.25.2022 | 4.08.2022 | 4.15.22 | 4.29.2022 | 5.13.2022 | 5.20.2022 | 5.27.2022 |
6.3.2022 | 6.10.2022 | 6.17.2022 | 6.24.2022 | 7.1.2022 | 7.8.2022 | 7.15.2022 | 7.22.2022 | 7.29.2022 | 8.5.2022 | 8.12.2022 | 8.26.22 | 9.2.22 | 9.9.22 | 9.16.22 | 9.23.22 | 10.4.22 | 10.28.22 | 11.4.22 | 12.9.22 | 12.16.22 | 1.06.23 | 1.13.23 | 1.20.23 | 1.27.23 | 2.03.23 | 2.10.23 | 2.17.23 | 2.24.23 | 3.3.23 | 3.10.23 | 3.17.23 | 3.24.23 | 3.31.23 | 4.7.23 | 4.14.23 | 4.21.23 | 4.28.23 | 5.5.23
New Physical Therapy & Rehab Building Updates
Although this project has been slightly delayed, a lot of behind the scenes work is still being done for the new freestanding structure to the East of the hospital. This building will be home to our physical therapy, cardiopulmonary rehab services, personal and athletic training teams. Giving both our patients and teams more space! Part of this project also includes an expanded parking area for patients and staff using this facility, as well the hospital.

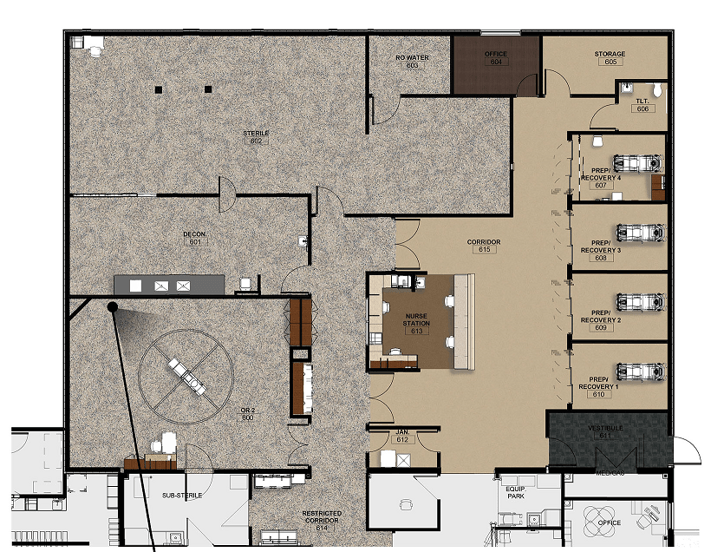
Addition to the back side of CRHC
This new addition will be home to several departments such as surgery, pharmacy, and our Infusion and Oncology Departments. Work on that expansion has already begun. This addition will add over 6,000 square feet onto our current surgery department which includes, four (4) new pre/post operative rooms, Increases our total number of surgery pre/post op rooms to seven (7) total, adds one (1) large operating room to our center, giving us a total of two (2) operating rooms and allows for multiple surgeries to be performed at one time, increasing our flexibility and number of cases we can accommodate for our patients.

Interior Renovation Projects inside CRHC
The red, orange and blue highlighted areas inside the hospital are set for renovation, relocation, and expansion. Interior projects will be completed in a way that will cause as little disruption to patient care as possible. These interior renovations are slated to begin once the PT and Cardiopulmonary departments are relocated into their brand new, state of the art, therapy center to the east of the hospital. The yellow and green areas are part of the new addition being added onto the current hospital.
Other Projects
During this expansion project we also have a few other small projects up our sleeves to ensure that our facilities meet the needs of both our patients and our team. These other smaller projects include a beautiful Founders Corner and garden area near the new PT Building to the East of the hospital, renovations inside the hospital to expand our Walk-In Clinic service, a more spacious, updated clinic for Bedford Family Health Center, and Sleep Quarters for providers, visiting student providers and other staff. A few of these projects are already in the works or completed! The Walk-in Clinic is now opened Monday through Friday effective March 2021 and the new Bedford clinic is well underway. Although construction on the Founders Corner project will not begin until the completion of the new PT building, brick sales are already underway. If you'd like to purchase a brick for a friend, family member or loved one, you can do that now!
During our Expansion Process
Construction Project Facts
Surgery Center Expansion
- Adds an additional 6,400 square feet to our current Surgery Center
- Adds four (4) new pre/post operative rooms, which are more spacious than our current pre/post op rooms
- Increases our total number of surgery pre/post op rooms to seven (7) total
- Adds one (1) large operating room to our center, giving us a total of two (2) operating rooms
- Allows for multiple surgeries to be performed at one time, increasing our flexibility and number of cases we can accommodate for our patients
New Physical Therapy Building
- Adds an entirely new building to our campus and frees up space in our hospital for further expansion and renovations
- Increases the size of our current Therapy Department by over 10,000 square feet
- Adds several private patient rooms and increased room for open treatment options
- Increases our current Cardiopulmonary Rehab space from 1,218 sq feet to 2,125 sq feet
- Allows for a more accommodating therapy experience overall and allows new services to be added:
- In-house Aquatic Therapy
- Expanded Sports Medicine space
- Expanded Group Fitness area
- Designated free weight/training area
- Artificial turf area for training/exercise
If you have any questions or concerns about our expansion project, please feel free to email us at info@clarindahealth.com


























